Property Details
Basic Information
- MLS Number: 43011
- Acreage: 0.1603
Property
- Square Feet: 1,320
- Year Built: 1935
- Rooms: 12
Location
- Neighborhood: Downtown
- Town: Edgartown
- State: MA
- Zip: 02539
Interior Features
Beds/Baths
- Bedrooms: 3
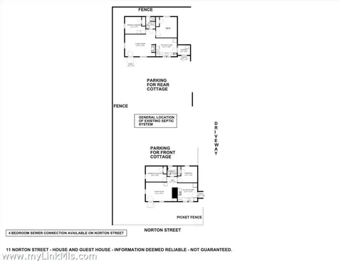
Basement
- Basement: Partial Basement under front cottage. Crawl space under rear cottage.
Other
- Floors: Hardwood and tile
Exterior Features
Features
- Parking Features : Yes - Easement - shared Driveway that is partially over subject property and neighbors at














Header Social Links