Property Details
Basic Information
- MLS Number: 43536
- Acreage: 0.92
Property
- Square Feet: 1,914
- Year Built: 1999
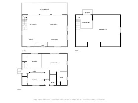
- Rooms: 7
Location
- Neighborhood: Central
- Town: Edgartown
- State: MA
- Zip: 02539
Interior Features
Beds/Baths
- Bedrooms: 3
Basement
- Basement: Private exterior access via sliding glass doors to the walk-in basement with high ceilings and two south-facing windows. 900 +/- s/f offers room to expand. Electrical panels, Weil-McLain water heater, Bradford White water tank, Well system and dehumidifier.
Other
- Floors: Wood, Carpet, Tile
Exterior Features
Features
- Parking Features: Pea stone drive with ample parking and car barn for one vehicle.




































Header Social Links